Plot 71
£299,995 Castleford
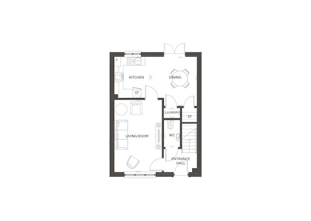
Available 3 Beds
The highlights of the Castleford:
- Spacious kitchen/dining area with laundry room
- Bedrooms 1 en suite with walk in wardrobe
- Great storage throughout
Internal & external specifications vary on each development.
Please contact our sales negotiator for further details on your chosen plot/development.
Here's what our customers have to say about us
“We had been looking to downsize but also wanted an open plan home with lots of space and storage, as well as a garden for our two dogs. This home ticked all of our boxes in terms of its location, the space, and the uniqueness of the development itself."
Pace Hill purchaser

